Wolfgang Wöhrmann Facility-Management
CAFM mit Visio

Wolfgang Wöhrmann - CAFM mit Visio - Gebäudereinigung

Nachdem sich in den letzten Jahren die CAFM-Systeme in breiter Front am Markt etablieren konnten, sind auch die Entwickler entsprechender Systeme für den Bereich der Gebäudereinigung - eigentlich ein Teilbereich von CAFM - nicht untätig gewesen und präsentieren entsprechende Lösungen.

Ob im Kontext einer Gesamtlösung oder als Einzelsystem entwickelt, leiden diese Systeme oft an den gleichen Schachstellen wie ihre großen Brüder. Obwohl ich schon an verschiedenen Stellen, u.a. sehr ausführlich in meiner Monographie CAFM mit Visio auf diese Dinge hingewiesen habe, sollen die beiden wichtigsten Argumente hier noch einmal rekapituliert werden.

  • Wegen des zu Grunde liegenden Grafiksystems, in der Regel AutoCAD© (in der Professional Version) oder MicroStation© sind diese Systeme nicht eben preiswert.
  • Wegen Ihrer hohen Komplexibilitä sind sie oft nur mühsam bedienbar und erfordern einen hohen Einarbeitungsaufwand.

Dass es auch anders und wesentlich preiswerter geht, soll an zwei Beispielen demonstriert werden, die mit Hilfe des Grafiksystems "Visio" von Microsoft© realisiert wurden. In beiden Fällen wurde dem Reinigungsunternehmen von Seiten des Kunden nur eine Pixel-Grafik bzw. eine PDF-Datei zur Verfügung gestellt, aus denen die geometrischen Informationen, d.h. in unserem Fall die Ausdehnung und Größe der Räume, nur indirekt entnommen werden konnten.

Auf der Grundlage dieser Daten sollte einmal ein Angebot erstellt werden. Auf der anderen Seite sollen diese Pläne für die interne Kalkulation und die Erstellung hausinterner Aufträge genutzt werden. Vorgabe des Kunden war weiterhin, dass die Flächenberechnungen um bis zu 10 % variieren können, was zu Lasten oder zu Gunsten des Anbieters ausschlagen kann.

Ehe auf die Beispiele im Einzelnen eingegangen wird, sollen einige Begrifflichkeiten aus dem Reinigungsgewerbe abgeklärt werden, mit denen im Folgenden gearbeitet wird.

Vorgaben aus dem Bereich der Gebäudereinigung

In Bezug auf die Anforderungen an die Gebäudereinigung wird üblicherweise unterschieden in solche qualitativer und solche quantitativer Art. Während erstere sich mit Qualifikation des Personals und deren Weiterbildung beschäftigen, finden die quantitativen Anforderungen - Gegenstand unserer Beispiele - Ausdruck in den Reinigungszeiten, also die Zeiten, die notwendig sind, die Reinigungsobjekte entsprechend den Vorgaben zu säubern.
Reinigungsobjekte können sein die Möbel, sonstige Einrichtungsgegenstände, die Gebäudefassade, die Glasflächen und hauptsächlich natürlich die Bodenflächen der Räume. Letztere sind Gegenstand unserer Betrachtung.
Diese Reinigungszeiten sind von fünf Faktoren abhängig:

  • von dem angewandten Reinigungsverfahren
  • von den verwendeten Maschinen und Geräten
  • vom Verschmutzungsgrad der Reinigungsobjekte
  • von der Überstelldichte des Bodens
  • von der Beschaffenheit der Reinigungsobjekte, insbesondere der Bodenbeschaffenheit

In der Literatur und in sonstigen Publikationen gab es bis vor wenigen Jahren nur wenige konkrete Angaben, was die Reinigungszeiten für bestimmte Böden in spezifischen Gebäuden betrifft. Die wichtigsten Quellen seien hier genannt:

Das sog. Hamburger Modell beinhaltet für die typischerweise in einem Krankenhaus vorkommenden Räume zwei Elemente, einmal die Raumgruppen, zum anderen die Leistungsvorgaben in Quadratmetern pro Stunde für diese Raumgruppen. Raumgruppen sind Räume, denen gleiche Leistungsvorgaben zugeordnet werden. Da diese Zahlen erstens veraltert, zweitens nur für Krankenhäuser gelten, werden sie heute in der Regel nicht mehr angewandt.

Das Kuratorium für Technik und Bauwesen in der Landwirtschaft(KTBL), welches in erster Linie ökonomische Fragen in der Landwirtschaft erarbeitet, hat u.a. auch Materialien für Raumreinigung erarbeitet. Die publizierten Werte, die auf realen Messungen basieren und damit sehr praxisbezogen sind, sind ausgewiesen als Arbeitskraftminute pro 10 qm Reinigungsfläche und müssen zur Vergleichbarkeit mit anderen Werten umgerechnet werden. Da sie in erster Linie Privathaushalten (in der Landwirtschaft) als Anhaltspunkte dienen, finden sie in unserer Betrachtung keine weitere Berücksichtigung.

Von größerem Gewicht sind die Zahlen, die vom REFA-Fachausschuss Gebäudereinigung in einer Studie veröffentlicht wurden. Sie basieren auf Zeitstudien, die nach Optimierung der Arbeitsorganisation - neudeutsch würde man sagen der Prozesse - durchgeführt wurden. Nach dieser Studie sind die Reinigungszeiten hauptsächlich abhängig von der Lage des Gebäudes, seines Verschmutzungsgrades, seiner Nutzung, seiner Frequentierung sowie der Möblierung der Räume. Darüber hinaus wird betont, dass die veröffentlichten Zahlen objektbezogen und damit nicht übertragbar sind. Die in der Studie wiedergegebenen Leistungskennzahlen, - gemessen in qm/h je nach Raumtyp - sind sehr detailliert, beziehen sich auf ein Altersheim, so dass wichtige Raumgruppen aus Verwaltungsgebäuden nicht auftauchen.

Auch das im Reinigungsbereich bekannte Autorenteam Neumann/Henning hat Leistungskennzahlen für die Erstellung von Angeboten für Gebäudedienstleister veröffentlicht, gemessen wieder in qm/h. Sie selbst nennen ihre Zahlen "realistische Angaben" und da diese Aussage zutrifft, werden die von ihnen ausgewiesenen Werte hier wiedergegeben. Auffällig ist die große Bandbreite für einige Raumgruppen.

Realistische Angaben nach Neumann/Henning
m² / h (Stunde)
  Raumgruppe Leistungskennzahl [qm / h]
  Toiletten 50 bis 90
  Wasch- und Duschräume 90 bis 180
  Büro und Verwaltungsräume 190 bis 250
  Flure 300 bis 500
  Sport- und Mehrzweckhallen 500 bis 800
  Treppenhäuser 200 bis 300
  Unterrichtsräume 250 bis 350
  Patientenzimmer 170 bis 220

Eine der wichtigsten Quellen für Leistungsvorgaben in der Gebäudereinigung ist bzw. war der Reinigungsexperte Walter Lutz bzw. seine beiden Söhne Martin und Andreas Lutz, die seine Firma, das Forschungs- und Prüfungsinstitut für Facility Management, das FIGR fortführen. In einem 2001 veranstaltetem Expertenforum der rationellen Hauswirtschaft liegen noch vom Vater (Walter Lutz) verantwortete Leistungskennzahlen für Pflegeheime vor. Da in unseren Beispielen mit z. T. ähnlichen Räumen gearbeitet wird und diese Zahlen einfließen, seien die seinerzeit veröffentlichten Werte hier genannt:

Richtwerte nach Lutz
m² / h (Stunde)
  Raumgruppe Leistungskennzahl [qm / h]
  Pflegestation 110 bis 140
  Flurbereich 300 bis 400
  Sanitärbereich 70 bis 90
  Verwaltungsbereich 200 bis 230
  Cafeteria 120 bis 140
  Treppenhaus 140 bis 170
  Abstellräume 200 bis 240
  Grundreinigung einschließlich
  Beschichtung
15 bis 20

Da die individuelle Situation der Betriebe hinsichtlich der verschiedenen Einflußfaktoren letztlich nur ungenügend berücksichtigt werden kann, sind die gelieferten Richtwerte nur grobe Anhaltspunkte, die für jeden Betrieb individuell korrigiert werden müssen.
In den skandinavischen Ländern, besonders in Finnland wurden schon vor über 30 Jahren wissenschaftlich fundierte Arbeitsstudien zu Reinigungsarbeiten durchführt. Diese Skandinavischen Standards für Reinigungsarbeiten mit den beschriebenen Methodenstandards (Arbeitsablauf) und Zeitstandards(Arbeitszeitbedarf) sind das fundierteste und detaillierteste, was am Markt verfügbar ist. Über 300 Standards sind dokumentiert. Hinsichtlich der Zeitvorgaben wird nach folgenden Kriterien unterschieden:

  • Überstelldichte (4 Varianten)
  • Verschmutzungsgrad (3 Varianten)
  • Oberflächenbeschaffenheit (Rauheit)
  • Reinigungsmethode (23 Methoden)
  • Reinigungsgerät (153 Geräte)

Von den Mitarbeitern des genannten Forschungsinstituts wurde das Software-Programm Clean-Net entwickelt, das versucht, die entwickelten Methoden EDV-mäßig umzusetzen.

Erstes Beispiel

Ausgangslage PDF-Datei

Vorgegeben war der (Teil-)Grundriss eines Stockwerkes in Form einer PDF-Datei. Dieser Grundriss wird in eine leere Visio-Zeichnung eingefügt und anhand der lesbaren Maßketten in der Visio-Zeichnung angepasst. Hat z.B. eine Tür, von der man die wahre Ausdehnung von 1,00 Meter weiß, in der eingefügten PDF-Datei eine Breite von 0,50 Meter, müßte die eingefügte Zeichnung in der Größe verdoppelt werden. Mit dem Verlegen des Grundrisses auf einen Hintergrund-Layer steht der Ausgangspunkt der Visio-Zeichnung.

Die Erzeugung der Raum-Shapes

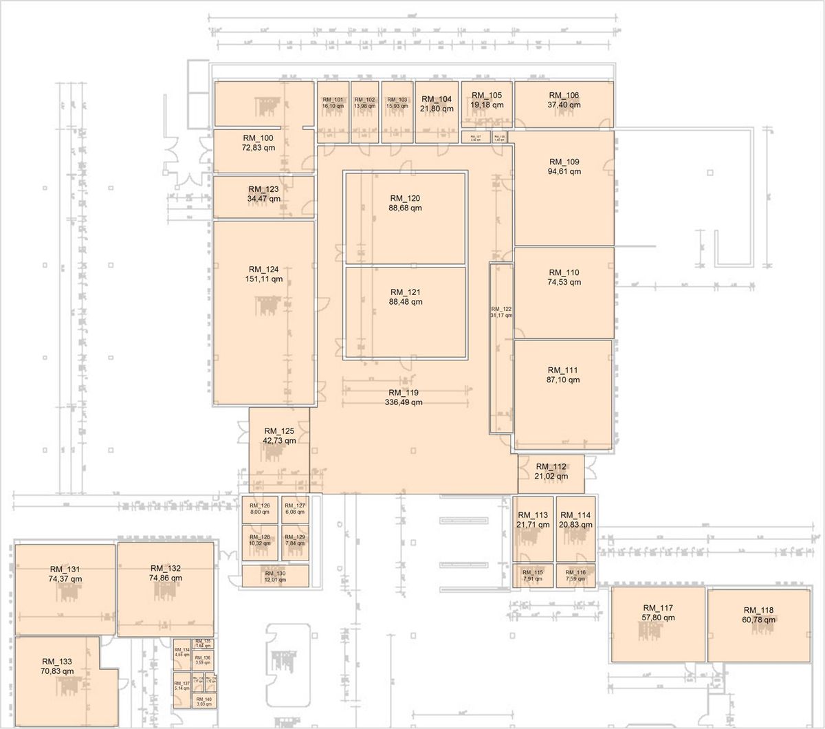
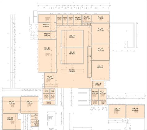
Als nächstes werden die Raum-Shapes erzeugt und mit den Eigenschaften (Attributen) versehen, die wir für den Umgang mit den Reinigungsarbeiten benötigen.
Das sind neben dem im obigen Teil erwähnten Namen des Raumes die Nutzungsgruppe und die Nutzungsart nach DIN 277. Die Größe eines Raumes, d.h. seine Fläche und sein Umfang werden vom System automatisch ermittelt. Die wichtigsten Attribute sind natürlich die Raumgruppe und die Leistungskennzahl.

Die Eigenschaften des Raumes

Alle - auszuwertenden - Eigenschaftsfelder müssen nun vom Benutzer mit Werten gefüllt werden. Einige können auch später nachgetragen werden, jedoch funktioniert die angekoppelte Datenbank nur bei Vorhandensein eines eindeuteigen (Raum-)Namens, die Auswertung der Reinigungsarbeiten nur, wenn Raumgruppen und Leistungskennzahlen vergeben wurden.

Die Auswertung der Räume nach Raumgruppen

Mit Visio sind grafische Auswertungen nach jedem vergebenem Attribut möglich, und zwar ohne Programmieraufwand, quasi auf Knopfdruck. Besonders interessant für unsere Problematik sind natürlich die Auswertungen nach Raumgruppen und nach Leistungskennzahlen, die im Folgenden wiedergegeben werden.

Die Auswertung der Räume nach Leistungskennzahlen

Generierung interner Aufträge

Für den Gebäudereiniger stellt sich nach Eingabe aller relevanten Raumdaten natürlich die Frage, wie viel Zeit für die Reinigung aller Räume benötigt wird. Dazu wurde in unserem Fall eine Datenbankabfrage erstellt, die eine Gesamtzeit von 6 Stunden und 56 Minuten ergibt. Gleichzeitig wird aus der Abfrage ersichtlich, dass für die 13 Unterrichtsräume ungefähr die gleiche Zeit benötigt wird wie für die restlichen Räume.
Da der Kunde eine Reinigung aller Räume nach Büroschluss in maximal vier Stunden wünscht, generiert der Unternehmer einen internen Auftrag für zwei Mitarbeiter, einer soll alle Unterrichtsräume (grün) mit einer Gesamtfläche von 991,74 qm in 3 Stunden und 31 Minuten reinigen, ein zweiter die restlichen Räume (rot) mit einer Gesamtfläche von 722,64 qm in 3 Stunden und 25 Minuten.

Zweites Beispiel

PDF-Datei eines größeren Grundrisses

Auch hier wird als Arbeitsgrundlage dem Reinigungsunternehmen eine PDF-Datei übergeben. Da keinerlei Maßketten vorhanden sind, muss im realen Gebäude ein Maß aufgenommen werden, in unserem Fall der Abstand zwischen zwei Gebäudeflügeln. Dieses Maß wird in die Zeichnung übertragen und diese entsprechend skaliert. Die gleiche Vorgehensweise hätte man im Übrigen auch, wenn statt der PDF-Datei eine beliebige Pixel-Grafik (BMP, GIF, JPG, TIFF) zur Verfügung gestellt worden wäre.

Zuweisung der Raum-Shapes

Die Zuweisung der Raum-Shapes erfolgt wie im ersten Beispiel erläutert, mit den gleichen Eigenschaften.

Zeichnungsdetail

Da auch hier eine Fehlertoleranz bezüglich der Bodenflächen von 10% zugestanden wird, werden die in den Raum hereinragenden Pfeilerecken nicht in Abzug gebracht.

Auswertung der Räume nach Nutzungsart Büroarbeit und andere

Da die Auswertung der Räume nach Nutzungsart der DIN 277 in den folgenden Beispielen eine wichtige Rolle spielt, finden Sie im Folgenden diese Auswertung. Unterschieden wird einmal in Büroräume im engeren Sinn, das sind Räume, die als Nutzungsgruppe der Büroarbeit und als Nutzungsart dem Büroraum zuzuordnen sind, auf der zweiten Seite alle anderen Räume der Nutzungsgruppe Büroarbeit wie Sekretariat, Besprechung usw. sowie alle Räume anderer Nutzungsgruppen wie Flure, Toiletten u.a. Nicht berücksichtigt sind Aufzüge und Schächte, die zwar nach DIN 277 einer Nutzungsgruppe zugewiesen werden müssen, im Reinigungsbereich jedoch keine Rolle spielen.

Diese Trennung wurde deshalb vollzogen, weil hierbei sowohl Flächen als auch Zeiten hälftig geteilt werden können.

Auswertung der Räume nach Nutzungsart Büroräume und andere unter alleiniger Berücksichtigung des Merkmals Raumgruppe

Im ersten Beispiel wird aufgrund einer Datenbankabfrage ein interner Auftrag für zwei Mitarbeiter erstellt. Der erste hat alle 51 Büroräume mit einer Gesamtfläche von 1.099,16 qm in einer Vorgabezeit von 4 Stunden und 23 Minuten zu reinigen, der zweite die restlichen 38 Räume mit einer Gesamtfläche von 1.190,91 qm in einer Vorgabezeit von 3 Stunden und 52 Minuten. Bei der Berechnung der Vorgabezeiten wurde lediglich das Kriterium Raumgruppe berücksichtigt.

Trennung der Räume, die jeweils ca. 50 % der Gesamtzeit beanspruchen unter alleiniger Berücksichtigung des Merkmals Raumgruppe

Im zweiten Beispiel wird aufgrund einer Datenbankabfrage ein interner Auftrag für zwei Mitarbeiter erstellt. Der erste hat alle Räume zu reinigen, bis ca. 50% der Gesamtreinigungszeit erricht ist, in unserem Fall 41 Räume mit einer Gesamtfläche von 1.076,56 qm in einer Vorgabezeit von 3 Stunden und 56 Minuten zu reinigen, der zweite die restlichen 48 Räume mit einer Gesamtfläche von 1.222,51 qm in einer Vorgabezeit von 4 Stunden und 19 Minuten. Bei der Berechnung der Vorgabezeiten wurde lediglich das Kriterium Raumgruppe berücksichtigt. Zur Kontrolle: Die Summe der Räume, Flächen und Zeiten in beiden Beispielen muss natürlich identische sein.

Auswertung der Räume nach Nutzungsart Büroräume und andere unter Berücksichtigung aller Merkmale, die auf die Leistungskennziffer Einfluss nehmen

Bei den Eigenschaften sowohl der Beispiele mit den Unterrichtsräumen als auch bei den beiden letzten beiden wurden zwar als Attribute der Verschmutzungsgrad und die Überstelldichte definiert, aber entweder nicht mit Werten belegt oder bei der Berechnung der Leistungskennziffern nicht berücksichtigt.
Das wird nun für die zwei letzten Beispiele geändert. In allen Büro- und Verwaltungsräumen, genauer Räumen, die dieser Raumgruppe zugehören, wird für jeden Raum der Verschmutzungsgrad und die Überstelldichte erfasst und in einer Excel-Tabelle hinterlegt.
Bei den Toiletten, den Wasch- und Duschräumen, den Treppenhäusern und den Unterrichtsräumen wird lediglich der Verschmutzungsgrad erfasst.
Eine hinterlegte VBA-Routine modifiziert nun - auf Knopfdruck - die Leistungskennziffern. Die Abhängigkeiten werden aus folgender Tabellen ersichtlich.

LKZ bei Büro- und Verwaltungsräumen
in Abhängigkeit von der Überstelldichte
bei leichtem Verschmutzungsgrad
  Überstelldichte Leistungskennzahl [qm / h]
  bis 10 % 250
  10 bis 20% 240
  20 bis 50 % 230
  über 50 % 220
LKZ bei Büro- und Verwaltungsräumen
in Abhängigkeit von der Überstelldichte
bei ziemlichem Verschmutzungsgrad
  Überstelldichte Leistungskennzahl [qm / h]
  bis 10 % 240
  10 bis 20% 230
  20 bis 50 % 220
  über 50 % 210
LKZ bei Büro- und Verwaltungsräumen
in Abhängigkeit von der Überstelldichte
bei extremen Verschmutzungsgrad
  Überstelldichte Leistungskennzahl [qm / h]
  bis 10 % 230
  10 bis 20% 210
  20 bis 50 % 200
  über 50 % 1900

LKZ bei Toiletten
in Abhängigkeit vom Verschmutzungsgrad
  Verschmutzungsgrad Leistungskennzahl [qm / h]
  leicht 90
  ziemlich 70
  extrem 50

LKZ bei Wasch- und Duschräumen
in Abhängigkeit vom Verschmutzungsgrad
  Verschmutzungsgrad Leistungskennzahl [qm / h]
  leicht 180
  ziemlich 150
  extrem 120

LKZ bei Fluren
in Abhängigkeit vom Verschmutzungsgrad
  Verschmutzungsgrad Leistungskennzahl [qm / h]
  leicht 450
  ziemlich 400
  extrem 350

LKZ bei Treppenhäusern
in Abhängigkeit vom Verschmutzungsgrad
  Verschmutzungsgrad Leistungskennzahl [qm / h]
  leicht 300
  ziemlich 250
  extrem 200

LKZ bei Unterrichtsräumen
in Abhängigkeit vom Verschmutzungsgrad
  Verschmutzungsgrad Leistungskennzahl [qm / h]
  leicht 350
  ziemlich 300
  extrem 250

Es dürfte klar sein, dass sich bei steigendem Verschmutzungsgrad bzw. höherer Überstelldichte die Reinigungszeiten erhöhen, wenn auch in unserem Beispiel nur geringfügig.

Trennung der Räume, die jeweils ca. 50 % der Gesamtzeit beanspruchen unter Berücksichtigung aller Merkmale, die auf die Leistungskennziffer Einfluss nehmen

Auch hier steigen die Reinigungszeiten (geringfügig) und bei zeithälftiger Teilung muss der erste Mitarbeiter jetzt 43 statt 41 Räume, der zweite 46 statt 48 Räume reinigen, woraus zu schließen ist, dass der erste Teil der Räume (geringfügig) schmutziger und/oder dichter überstellt war.

Wie aus den Beispielen ersichtlich, lässt sich bei Vorliegen weiterer Daten wie des wöchentlichen und monatlichen Reinigungszyklus der vorgestellte Lösungskatalog leicht zu einem Gesamtpaket erweitern.